Проект
Дом для двух поколений
Статус проекта:
Реализован
Реализован
Проектируемая площадь:
1165 м2
1165 м2
Год:
2016-2018
2016-2018
Назначение объекта:
Персональное домовладение
Персональное домовладение
Проект дом для двух поколений 1165 м2
Архитектурная концепция
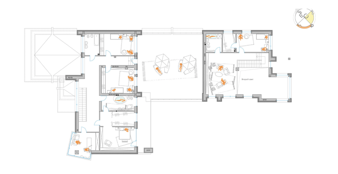
Мы назвали этот проект "Два поколения", и это название вполне отражает вставшую перед нами задачу - комфортно разместить на небольшом земельном участке жилой комплекс для двух поколений семьи, в котором совмещалось бы соседство и уединенность.
Таким образом появился основной дом, дом выходного дня и соединяющий их блок.
Основной дом был запланирован для постоянного проживания младшего поколения с двумя детьми. В основу идеи дома, по просьбе заказчика, легли мотивы архитектурных концепций FLW.
В дополнение к основному дом для старшего поколения спозиционирован заказчиком как дом выходного дня. Решено было спроектировать его таким образом, чтобы не повторять основную концепцию, а показать самостоятельное дополнение, отличное от основного комплекса зданий.
Мы назвали этот проект "Два поколения", и это название вполне отражает вставшую перед нами задачу - комфортно разместить на небольшом земельном участке жилой комплекс для двух поколений семьи, в котором совмещалось бы соседство и уединенность.
Таким образом появился основной дом, дом выходного дня и соединяющий их блок.
Основной дом был запланирован для постоянного проживания младшего поколения с двумя детьми. В основу идеи дома, по просьбе заказчика, легли мотивы архитектурных концепций FLW.
В дополнение к основному дом для старшего поколения спозиционирован заказчиком как дом выходного дня. Решено было спроектировать его таким образом, чтобы не повторять основную концепцию, а показать самостоятельное дополнение, отличное от основного комплекса зданий.